13360 Green Dr, Chesterland
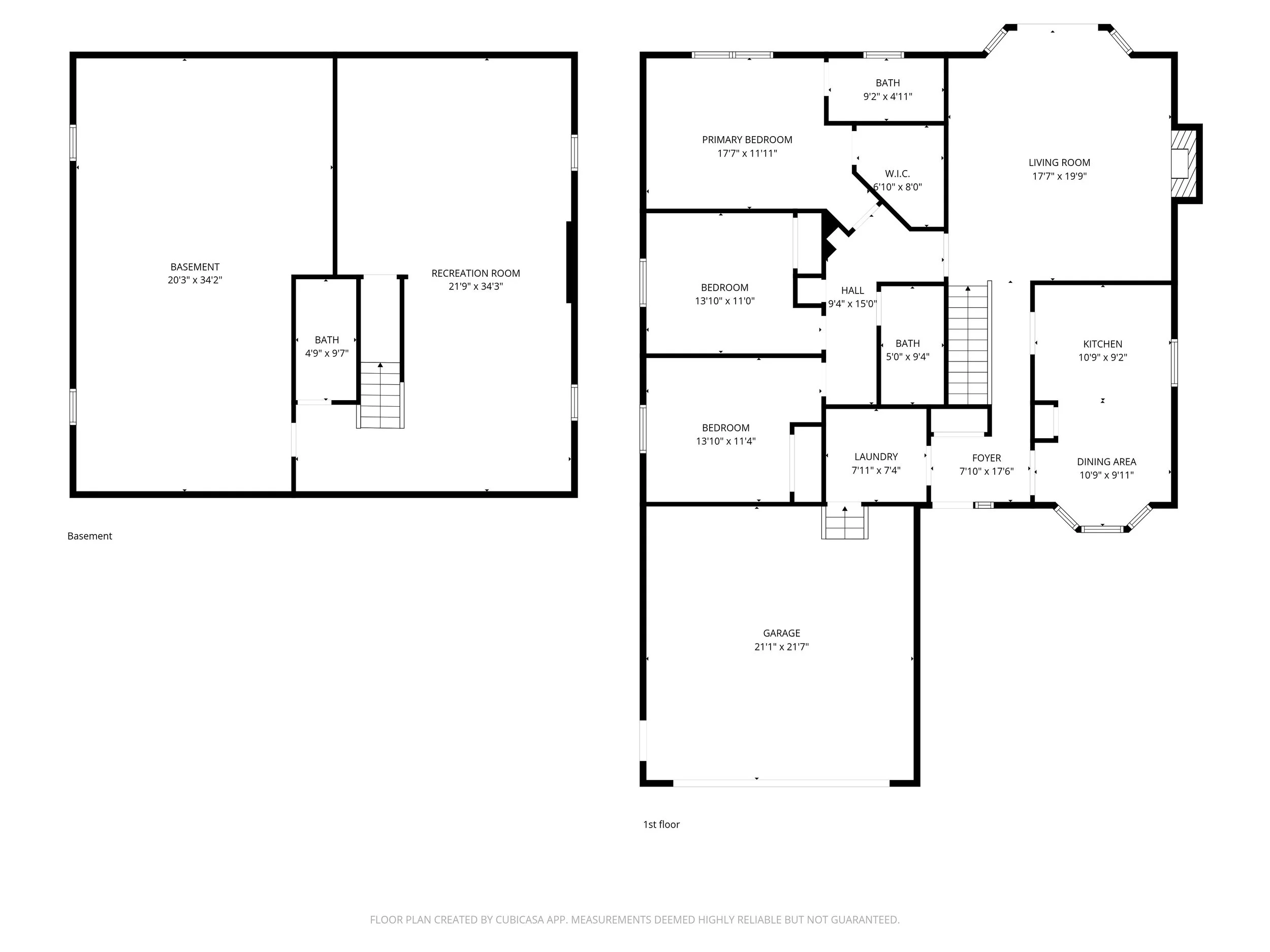
Welcome to this beautifully maintained ranch in Chesterland, set on a private 1-acre lot with a finished basement featuring soaring ceilings. Offering true one-floor living with first-floor laundry and an attached garage, this home combines comfort, space, and functionality in a peaceful wooded setting. This 3-bedroom, 3 full bathroom home was built in 2009 and has been meticulously cared for throughout. The main level features an inviting eat-in kitchen, a bright and comfortable living room, and convenient first-floor laundry. All three bedrooms and two full bathrooms are located on the main floor, creating an ideal layout for easy everyday living. Step outside to the covered patio and enjoy serene views of the private, wooded backyard, perfect for relaxing or entertaining. The partially finished basement adds incredible versatility with soaring ceilings, a third full bathroom, and additional unfinished space ideal for storage, a home gym, or future expansion. This home has been very well maintained and offers a rare combination of modern construction, thoughtful layout, and a peaceful setting, all in a desirable Chesterland location.
Features + Details
- $380,000 - Partially finished basement
- 3 bed | 3 bath - 1 Acre lot
- 1,528 Square Feet - 2009 Year built

